82 Presidio Ridge Drive (Lot 653)

Hill Country Elegance on Lot 653 – Boot Ranch

$6,000,000

Property Details

5 Bedroom

5.5 Bath

4993 Square Feet

3-Car 1-Golf Cart Garage

Under Construction

2.00 Acres

About This Property

Urbano Design & Build Brings Custom Elegance to the Hill Country – Lot 653, Boot Ranch

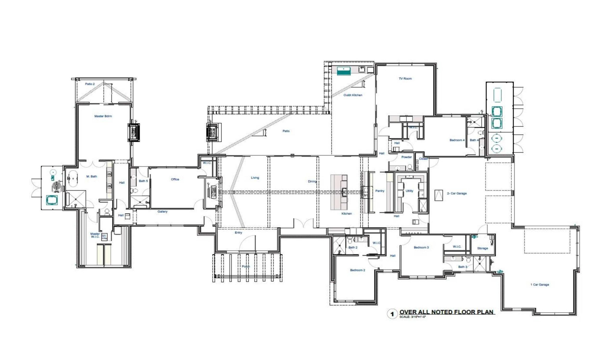
Experience timeless Hill Country sophistication in this exquisite new custom estate by Urbano Design & Build, located on Lot 653, Presidio Drive in the exclusive Boot Ranch community. Perfectly positioned near Longhorn Landing and the scenic Boot Ranch trail system, this five-bedroom, five-and-a-half-bath masterpiece spans 4,993 sq ft of living space plus 2,666 sq ft of covered outdoor terraces, blending natural beauty, privacy, and refined architectural design. Completing the home is a spacious three-car garage along with a dedicated golf cart garage, ideal for accommodating a full range of vehicles and recreational needs.

Step through a handcrafted entry into a grand great room featuring 18-foot ceilingsexposed beams, and wide-plank hardwood floors. The chef’s kitchen is a true showpiece with Sub-Zero and Wolf appliancescustom cabinetry, a dedicated prep kitchen, and a 480 plus-bottle wine cellar. Walls of glass open to expansive outdoor living spaces — complete with BBQ kitchensports-bar-style lounge, and a resort-inspired pool — perfect for effortless entertaining or quiet relaxation.

Every suite is a private retreat with walk-in wardrobes and spa-inspired baths, while thoughtful touches such as a dog-bathing and pampering stationdual washer-dryer setups, and a three-car garage elevate everyday living.

Nestled within the gated Boot Ranch community, residents enjoy world-class amenitieschampionship golf, a luxury sparacquet and fitness clubsLonghorn Landing, and Metzger Park.

To experience the timeless artistry and privacy of Urbano Design & Build at Boot Ranch, call (830) 997-6200 to schedule your private tour.

A Boot Ranch Club Membership is required with the purchase of property, and annual Club dues are required. The Boot Ranch multi-generational membership extends member privileges to your parents, grandparents, children, adult children, grandchildren, and all their spouses so your family can enjoy exclusive membership privileges without additional membership dues. Call (830) 997-6200 to schedule a private showing of this one-of-a-kind Hill Country residence.